Warehouse 47
Rehabilitation of industrial heritage
Transformation of the historic warehouse, Pakhus 47, located on Sundmolen.
With careful interventions that preserve the warehouse’s existing structure, materials, and resources while highlighting its unique industrial heritage, the building is entering a new era as an attractive office and rental space by Copenhagen’s waterfront, certified to DGNB Silver.
The project demonstrates how existing structures can be repurposed instead of demolished, significantly reducing resource consumption and environmental impact.
Location
Copenhagen, Denmark
Area
12 900 m2
Typology
Office
Collaborators
Skala Architecture
Ove Arup & Partners Denmark A/S
Schmidt Hammer Lassen
Year
2021 – 2024
Status
Completed
Client
By & Havn
Services
Architectural consulting
DGNB auditing
Photos by
ELP Photography
Giedre Skucaite




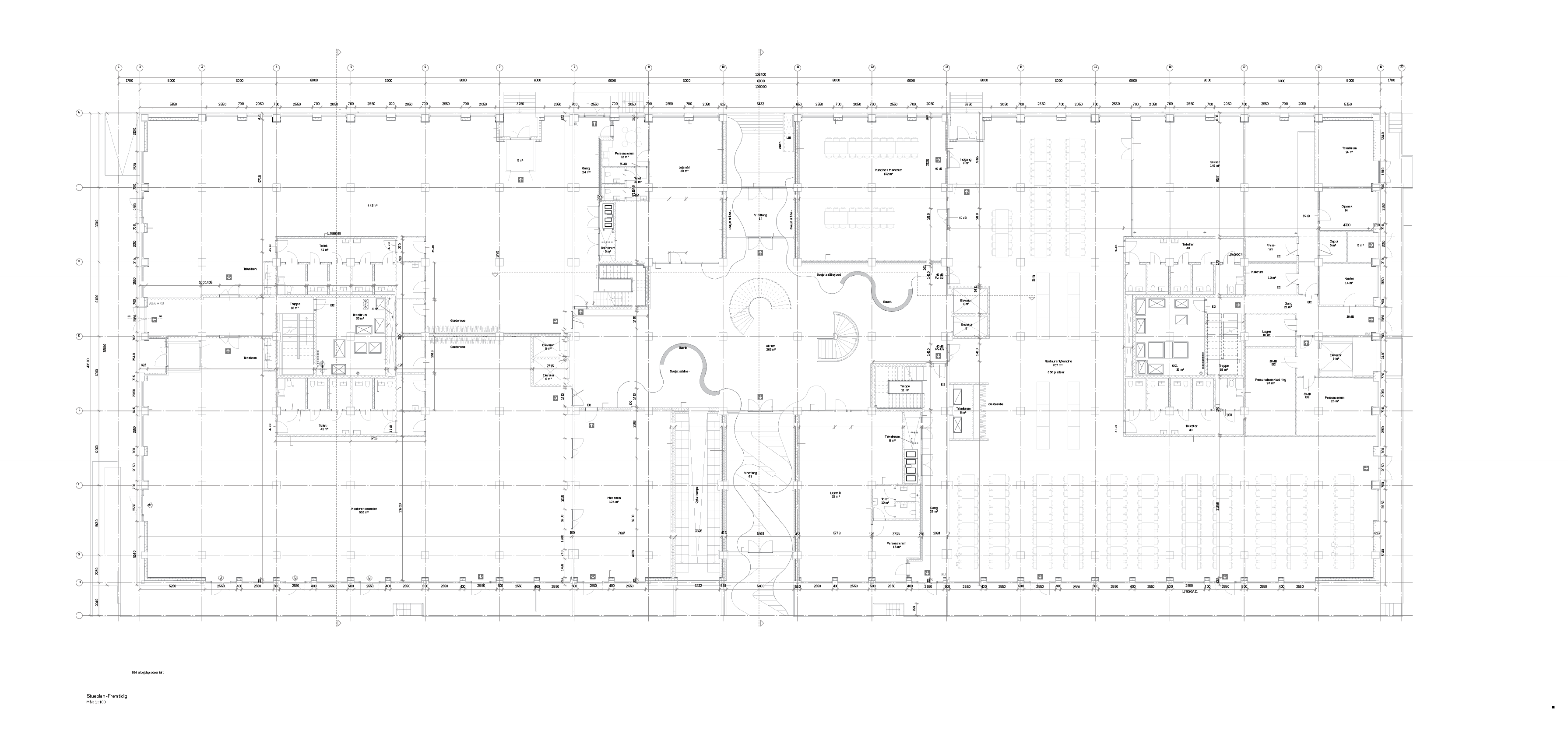
Standing as a distinctive landmark on Sundmolen, Pakhus 47 is given new life through an ambitious sustainability strategy. Originally built in 1946 for storing coffee and goods from the East Asiatic Company, the renovation retains the existing structure, including concrete columns and floor slabs, and materials from the building have been mapped and repurposed.
A central atrium is introduced, bringing natural light into a green passage that serves as a main entrance and communal space. Overlooked spaces such as an old lift room have been reimagined as a meditation room.




The rehabilitation preserves the warehouse’s unique charm and historical significance, providing a space that attracts a diverse range of tenants, visitors, and passersby. The building is now a key part of the North Harbour district’s transformation into a recognized hub for design, architecture, and knowledge industries.
Pakhus 47 won the prestigious 2024 Building of the Year award in the Commercial category, further highlighting its success in combining heritage preservation with forward-thinking sustainability.




‘Achieving DGNB Silver in a renovation project like this is truly invaluable, and it’s strong proof that it is possible to combine historical preservation with today’s demands for climate responsibility and quality. It takes both commitment and collaboration — and everyone involved in the Warehouse 47 project has contributed to that.’
Anne Skovbro
CEO, By & Havn




Impacts
- Significant CO2 reduction through the reuse of existing structures.
- Circular use of materials, preventing unnecessary waste and resource depletion.
- Reduced material consumption—only 4,165 tonnes used instead of the 45,000 tonnes required for a new build.
- Increased attractiveness for tenants, visitors, and businesses seeking workspaces with focus on sustainability


